Wien 128

ab € 344.400,-*

Typenhaus Wien 128

  • Gesamtfläche: 127,88 m²
  • Schlafzimmer mit begehbarer Ankleide
  • 2 Kinderzimmer
  • Gästezimmer/Büro im EG
  • ab € 344.400,-*  

Typenhaus Wien 128

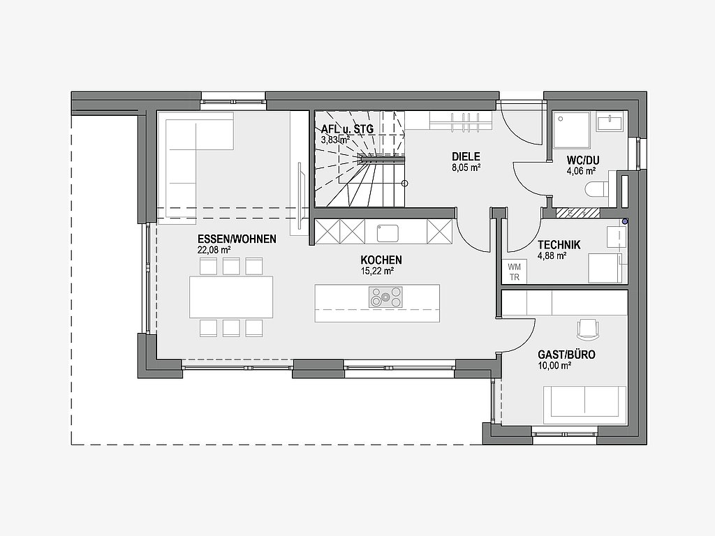
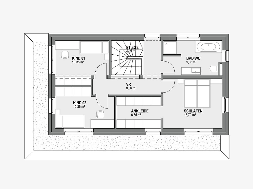
Das schlichte und dadurch moderne Design des Typenhauses Wien 128 begeistert Jung und Alt! Auf 127,88 m² finden Sie die offen gestaltete Küche, die bei jedem Chefkoch der Familie das Herz höher springen lässt. Das angrenzende Gästezimmer bzw. Büro bietet zusätzliche Flexibilität für Arbeit, Besuch oder Hobby. Im Obergeschoß finden Sie zwei Kinderzimmer sowie ein Schlafzimmer mit eigenem Ankleidebereich.

Die überdachte Terrasse schützt an heißen Sommertagen mit einem schattigen Plätzchen und bietet Platz für gesellige Stunden mit Familie und Freunden. 

Raumaufteilung Wien 128

Grundrisse

Fläche 64,29 m²
Fläche 63,59 m²
Ihr Ziegelmassivhaus

Termin vereinbaren

Stephanie Stöger BSc.
AB € 344.400,-*

Leistungsbeschreibung

Top-Ausstattung mit bester Qualität

  • WALLMENT-Ziegelrohbau 25 cm + 20 cm Vollwärmeschutz (48 cm Wandstärke)
  • Fundament, Bodenplatte und Flachdach
  • WINDOWMENT®-Kunststofffenster mit Dreifach-Verglasung und elektrischem Sonnenschutz
  • Luft-Wasser-Wärmepumpe inkl. Fußbodenheizung
  • Sanitärrohinstallation und Elektroinstallation
  • uvm.
Haus-Anfrage

Jetzt anfragen

Anrede *
PLZ * / Ort *
Grundstück *
Newsletter *

Mit * markierte Felder sind Pflichtfelder!

* Bauzone 1, Oberösterreich; Haus mit Flachdach; außen schlüsselfertig; innen belagsfertig inkl. Bodenplatte und Streifenfundamente; Außenwand mit 25 cm WALLMENT-Ziegelfertigwänden und 20 cm Vollwärmeschutzfassade; WINDOWMENT®-Kunststofffenster; VIESSMANN-Luft-Wasser-Wärmepumpe; komplette Elektro- und Sanitärrohinstallation; Estrich; Innenputz;