Innsbruck 145 Edition

Bauen am Hang: Raffinierte LĂśsungen fĂźr besondere GrundstĂźcke

  • Gesamtfläche: 144,65 m²
  • 2 Kinder- und 1 Schlafzimmer
  • Bad und WC getrennt
  • Je nach Hanglage kann die Raumaufteilung angepasst werden
  • Preis auf Anfrage

Innsbruck 145 EDITION

Mit der Innsbruck 145 EDITION wird das Bauen auf HanggrundstĂźcken zum Genuss. Dieses Haus bietet großzĂźgige Räume fĂźr die gesamte Familie, allen voran der offene Wohn- und Essbereich, der den Mittelpunkt des Hauses bildet. Eine großzĂźgige Terrasse lädt zum Entspannen ein und bietet eine tolle Aussicht. 

  • Alles aus einer Hand
  • Regionale Partner
  • Ziegelmassive Bauweise
  • Fixtermin & Fixpreis

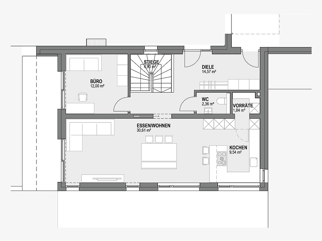
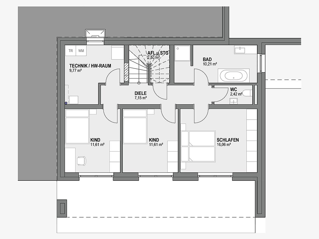
Raumaufteilung Innsbruck 145 Edition

Grundrisse

Fläche 75,83 m²
Fläche 68,82 m²
Ihr Ziegelmassivhaus

Termin vereinbaren

Christian Mergl

Leistungsbeschreibung

Top-Ausstattung mit bester Qualität

  • WALLMENT-Ziegelrohbau 25 cm + 20 cm Vollwärmeschutz (48 cm Wandstärke)
  • Fundament, Bodenplatte und Flachdach
  • WINDOWMENTÂŽ-Kunststofffenster mit Dreifach-Verglasung  und elektrischem Sonnenschutz
  • Luft-Wasser-Wärmepumpe inkl. Fußbodenheizung
  • Sanitärrohinstallation und Elektroinstallation
  • inkl. Tonziegeldach (optional mit anderen Werkstoffen) 
  • Fassade mit Silikonaußenputz und Sockelputz 
  • uvm.
     
Haus-Anfrage

Jetzt anfragen

Anrede *
PLZ * / Ort *
GrundstĂźck *
Newsletter *

Mit * markierte Felder sind Pflichtfelder!

Unsere Ziegelmassivhäuser

Große Typenvielfalt

* Bauzone 1, OberĂśsterreich; Haus mit Flachdach; außen schlĂźsselfertig; innen belagsfertig inkl. Bodenplatte und Streifenfundamente; Außenwand mit 25 cm WALLMENT-Ziegelfertigwänden und 20 cm Vollwärmeschutzfassade; WINDOWMENTÂŽ-Kunststofffenster; VIESSMANN-Luft-Wasser-Wärmepumpe; komplette Elektro- und Sanitärrohinstallation; Estrich; Innenputz;