Innsbruck 145

ab € 359.040,-*

Top-Hanglagehaus von AUSTROHAUS

  • Gesamtfläche: 145,13 m²
  • offener Wohn-Ess-Koch-Bereich mit Vorratsraum
  • 1 Schlafzimmer mit separater Ankleide
  • 2 Kinderzimmer + 1 BĂźro
  • Je nach Hanglage kann die Raumaufteilung angepasst werden. 
  • ab € 359.040,-*

 

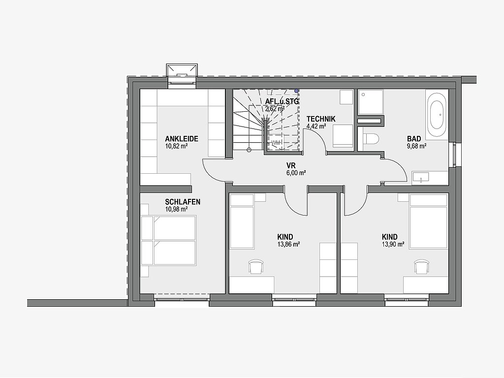
Typenhaus Innsbruck 145

Das Typenhaus Innsbruck 145 mit einer Gesamtfläche von 145,13 m² ist ein ganz besonderes Zuhause für die ganze Familie. Damit das Beisammensein mit Freunden in vollen Zügen genossen werden kann, wurde der längliche Wohn-Ess-Koch-Bereich offen gestaltet. Der Zutritt auf die große Terrasse verspricht auch hier Entspannung pur nach einem stressigen Arbeitstag. Im Gartengeschoß finden zwei Kinderzimmer (13,86 und 13,90 m²) und ein Schlafzimmer mit abgeteilter Ankleide seinen Platz.

  • Alles aus einer Hand
  • Regionale Partner
  • Ziegelmassive Bauweise
  • Fixtermin & Fixpreis

Raumaufteilung Innsbruck 145

Grundrisse

Fläche 69,66 m²
Fläche 75,47 m²
Ihr Ziegelmassivhaus

Termin vereinbaren

Heinrich Piribauer
AB € 359.040,-

Leistungsbeschreibung

Top-Ausstattung mit bester Qualität

  • WALLMENT-Ziegelrohbau 25 cm + 20 cm Vollwärmeschutz (48 cm Wandstärke)
  • Fundament, Bodenplatte und Flachdach
  • WINDOWMENTÂŽ-Kunststofffenster mit Dreifach-Verglasung und elektrischem Sonnenschutz
  • Luft-Wasser-Wärmepumpe inkl. Fußbodenheizung
  • Sanitärrohinstallation und Elektroinstallation
  • uvm.
Haus-Anfrage

Jetzt anfragen

Anrede *
PLZ * / Ort *
GrundstĂźck *
Newsletter *

Mit * markierte Felder sind Pflichtfelder!

* Bauzone 1, OberĂśsterreich; Haus mit Flachdach; außen schlĂźsselfertig; innen belagsfertig inkl. Bodenplatte und Streifenfundamente; Außenwand mit 25 cm WALLMENT-Ziegelfertigwänden und 20 cm Vollwärmeschutzfassade; WINDOWMENTÂŽ-Kunststofffenster; VIESSMANN-Luft-Wasser-Wärmepumpe; komplette Elektro- und Sanitärrohinstallation; Estrich; Innenputz;