Salzburg 148 Edition

Noch kein passendes Typenhaus Salzburg gefunden?

  • Erdgeschoß: 70,31 m²
  • Obergeschoß: 76,23 m²
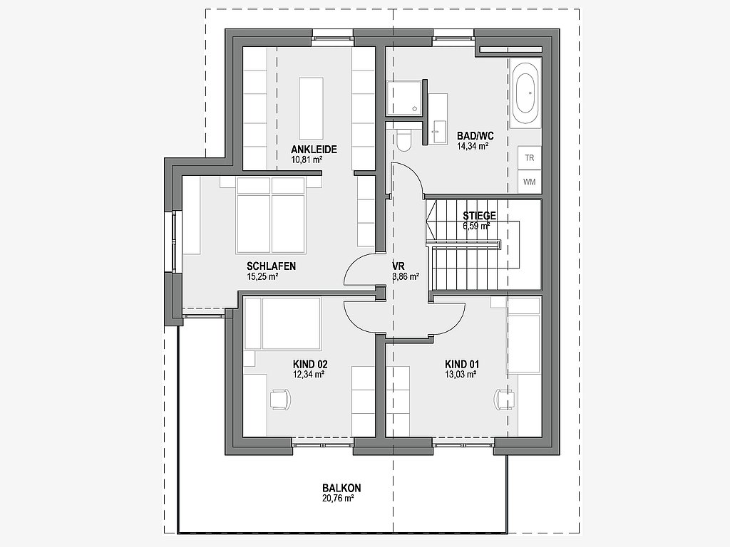
  • Gästezimmer/BĂźro im EG
  • 2 Kinder- und 1 Schlafzimmer mit Ankleide
  • Grundrisse individuell anpassbar
  • Preis auf Anfrage

Salzburg 148 Edition

Eine von vielen MĂśglichkeiten

Das Salzburg 148 Edition verbindet modernes Design mit Wohlfßhlatmosphäre. Auf 146,54 m² erwartet dich ein offener Wohn-Ess-Koch-Bereich, ein flexibles Gästezimmer sowie helle Schlafräume mit Ankleide. Ein Zuhause, das Platz fßr die ganze Familie und deine Träume bietet.

Raumaufteilung Salzburg 148 Edition

Grundrisse

Fläche 70,31 m²
Fläche 76,23 m²
Ihr Ziegelmassivhaus

Termin vereinbaren

Heinrich Piribauer
Haus-Anfrage

Jetzt anfragen

Anrede *
PLZ * / Ort *
GrundstĂźck *
Newsletter *

Mit * markierte Felder sind Pflichtfelder!

Unsere Ziegelmassivhäuser

Große Typenvielfalt