Wien 137 EDITION

Rein ins Eigenheim mit dem AUSTROHAUS Wien 137 EDITION

  • Gesamtfläche: 137,82 m²
  • abtrennbarer Wohn-Ess-Koch-Bereich
  • Gästezimmer/BĂźro im Erdgeschoß
  • großes Schlafzimmer mit Ankleide
  • Preis auf Anfrage

Typenhaus Wien 137 EDITION

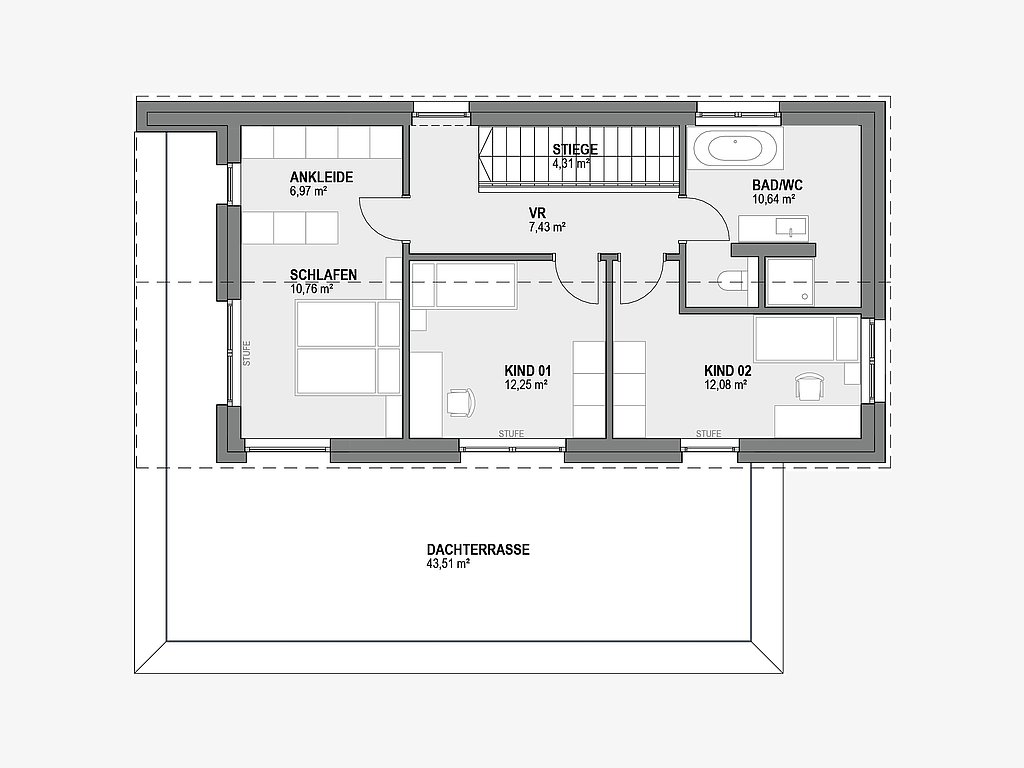
Das Typenhaus Wien 137 EDITION verbindet modernes Design mit einer durchdachten Raumaufteilung. Auf 137,82 m² bietet das Erdgeschoss einen abtrennbaren Wohn-Ess-Koch-Bereich sowie ein Gästezimmer oder Bßro. Im Obergeschoss befinden sich zwei Kinderzimmer, ein Schlafzimmer mit Ankleide sowie ein Bad.

Besonderes Highlight: Die großzügige Dachterrasse, die von allen drei Schlafzimmern aus direkt zugänglich ist und zusätzlichen Wohnraum im Freien bietet.

Raumaufteilung Wien 137 EDITION

Grundrisse

Fläche 73,37 m²
Fläche 64,54 m²
Ihr Ziegelmassivhaus

Termin vereinbaren

Patrick Dickinger

Leistungsbeschreibung

Top-Ausstattung mit bester Qualität

  • WALLMENT-Ziegelrohbau 25 cm + 20 cm Vollwärmeschutz (48 cm Wandstärke)
  • Fundament, Bodenplatte und Flachdach
  • WINDOWMENTÂŽ-Kunststofffenster mit Dreifach-Verglasung und elektrischem Sonnenschutz
  • Luft-Wasser-Wärmepumpe inkl. Fußbodenheizung
  • Sanitärrohinstallation und Elektroinstallation
  • uvm.
Haus-Anfrage

Jetzt anfragen

Anrede *
PLZ * / Ort *
GrundstĂźck *
Newsletter *

Mit * markierte Felder sind Pflichtfelder!

Unsere Ziegelmassivhäuser

Große Typenvielfalt

* Bauzone 1, OberĂśsterreich; Haus mit Flachdach; außen schlĂźsselfertig; innen belagsfertig inkl. Bodenplatte und Streifenfundamente; Außenwand mit 25 cm WALLMENT-Ziegelfertigwänden und 20 cm Vollwärmeschutzfassade; WINDOWMENTÂŽ-Kunststofffenster; VIESSMANN-Luft-Wasser-Wärmepumpe; komplette Elektro- und Sanitärrohinstallation; Estrich; Innenputz;