Salzburg 170

ab € 472.440,-*

Lassen Sie Ihre TrÀume wahr werden mit dem Typenhaus Salzburg 170

  • GesamtflĂ€che: 170,08 mÂČ
  • abtrennbarer Wohn-Ess-Koch-Bereich
  • GĂ€stezimmer/BĂŒro im Erdgeschoß
  • Schlafzimmer mit separater Ankleide
  • ab € 472.440,-*

Typenhaus Salzburg 170

Mit dem Typenhaus Salzburg 170 wird Haus bauen zum Kinderspiel. Das Ziegelmassivhaus wird bei gleicher Leistung zum selben Preis und auch im gleichen Zeitraum wie vergleichbare FertigteilhĂ€user hergestellt. Das Haus beeindruckt durch modernes Design und durch die höhenversetzten Geschoße. Weiters sind Erd- und Obergeschoß durch viele Fenster lichtdurchflutet und bilden dadurch ein ideales Raumklima. Das Ziegelfertighaus verfĂŒgt ĂŒber ein Schlafzimmer mit einer separaten Ankleide, zwei Kinderzimmer – ideal fĂŒr eine vierköpfige Familie.

  • Alles aus einer Hand
  • Regionale Partner
  • Ziegelmassive Bauweise
  • Fixtermin & Fixpreis

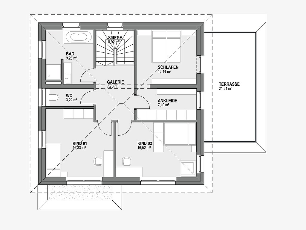
Raumaufteilung Salzburg 170

Grundrisse

FlĂ€che 92,86 mÂČ
FlĂ€che 77,22 mÂČ
Ihr Ziegelmassivhaus

Termin vereinbaren

Patrick Dickinger

Leistungsbeschreibung

Top-Ausstattung mit bester QualitÀt

  • WALLMENT-Ziegelrohbau 25 cm + 20 cm VollwĂ€rmeschutz (48 cm WandstĂ€rke)
  • Fundament, Bodenplatte und Flachdach
  • WINDOWMENTÂź-Kunststofffenster mit Dreifach-Verglasung und elektrischem Sonnenschutz
  • Luft-Wasser-WĂ€rmepumpe inkl. Fußbodenheizung
  • SanitĂ€rrohinstallation und Elektroinstallation
  • uvm.
Haus-Anfrage

Jetzt anfragen

Anrede *
PLZ * / Ort *
GrundstĂŒck *
Newsletter *

Mit * markierte Felder sind Pflichtfelder!

* Bauzone 1, Oberösterreich; Haus mit Flachdach; außen schlĂŒsselfertig; innen belagsfertig inkl. Bodenplatte und Streifenfundamente; Außenwand mit 25 cm WALLMENT-ZiegelfertigwĂ€nden und 20 cm VollwĂ€rmeschutzfassade; WINDOWMENTÂź-Kunststofffenster; VIESSMANN-Luft-Wasser-WĂ€rmepumpe; komplette Elektro- und SanitĂ€rrohinstallation; Estrich; Innenputz;